Tjarnabraut 2 (208) 260

Njarðvík

Lýsing

Miklaborg kynnir: Nýtt og glæsilegt fjölbýlishús með lyftu á fjölskylduvænum stað við Tjarnabraut 2 í Innri Njarðvík. Íbúðirnar eru vel skipulagðar og vel útbúnar. Þær skilast með fallegum innréttingum frá Parka með innbyggðum ísskáp og uppþvottavél. Gólfhiti í öllum rýmum og vinyl parket á gólfum nema á baðherbergi þar sem verða flísar. Uppsettar verða tvær hleðslustöðvar á lóð hússins ásamt því að lagðar verða lagnaleiðir fyrir hleðslustöðvar í stæðin við húsið.


Tilbúið til afhendingar við kaupsamning


Nánari upplýsingar veita:
Ingimundur Ingimundarson löggiltur fasteignasali í síma 867-4540 eða ingimundur@miklaborg.is

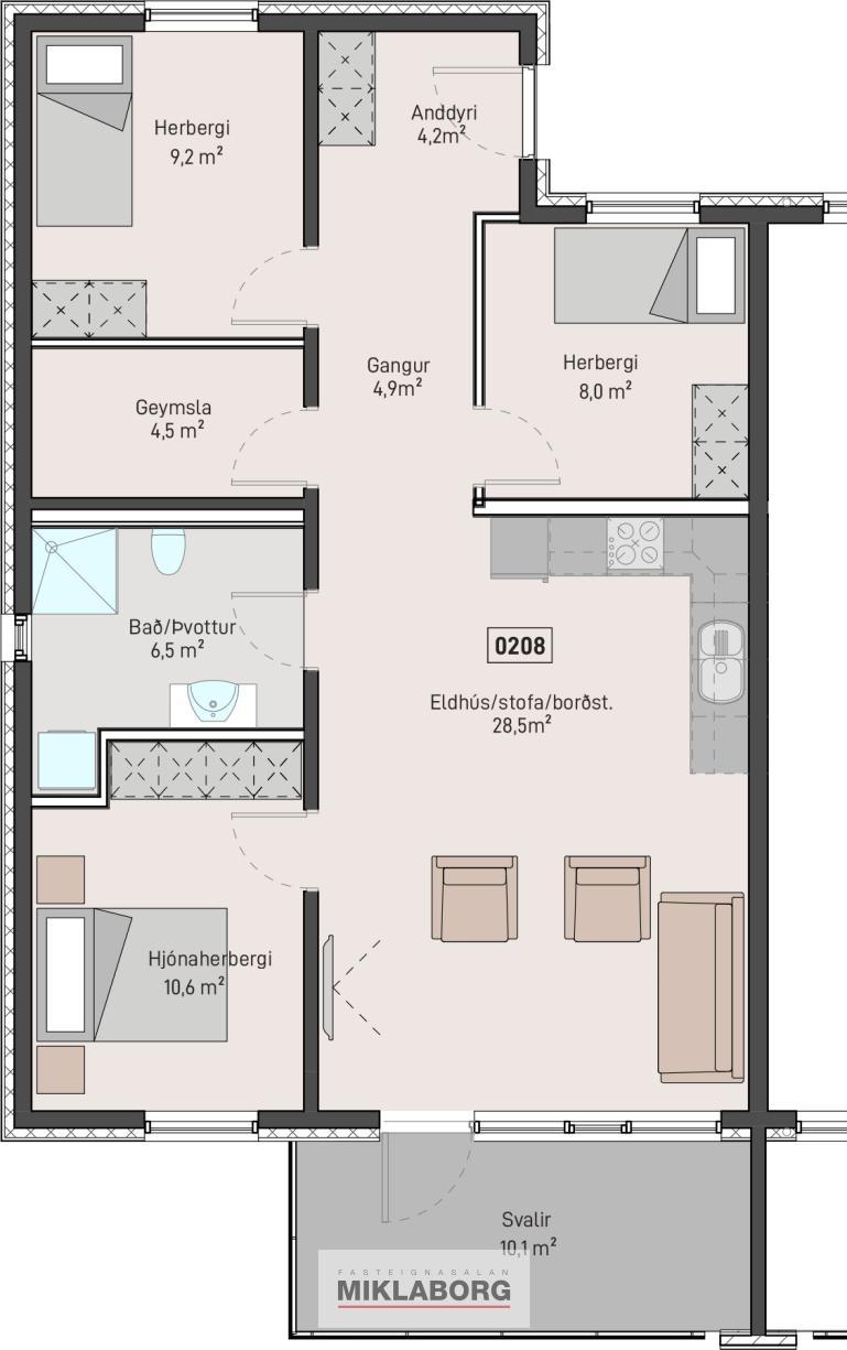
Nánari lýsing:
Íbúð 208 er glæsileg 4 herbergja endaíbúð á 2. hæð með rúmgóðum svölum. Íbúðin skiptist í anddyri með fataskáp, þrjú svefnherbergi með fataskápum, geymsla inna íbúðar, baðherbergi með aðstöðu fyrir þvottavél og þurrkara. Eldhús og stofu/borðstofu í opnu alrými. 


Nánari upplýsingar í skilalýsingu seljanda


Tjarnabraut 2 - almenn lýsing
Húsið er glæsilegt staðsteypt þriggja hæða lyftuhús, einangrað að utan og klætt með báruðu áli. Allir gluggar og útihurðar eru timbur/ál. Íbúðir skilast fullfrágengnar að innan sem utan. Að innan eru allar íbúðir með vönduðum innréttingum frá Parka, fullmálaðar og með vínyl parketi. Fataskápar í herbergjum eru hvítir. Innihurðir eru yfirfelldar, hvítar. Í loftum íbúðanna allstaðar nema á baði, eru Rockfon hljóðísogs plötur frá Parka sem gerir hljóðvist íbúða eins og best verður á kosið. Á lóð verður hjólaskýli.


Heimasíða verkefnisins


Hverfið
Um er að ræða sérlega fjölskylduvænt hverfi í mikilli uppbyggingu. Stutt er í bæði skóla og leikskóla. Falleg náttúra er allt um kring og stutt í ýmiskonar útivistarmöguleika. Fallegar göngu- og hjólaleiðir eru frá íbúðunum og stutt í alla þjónustu. Stutt er að keyra inn á Reykjanesbraut, samgöngur til og frá svæðinu er því mjög auðveldar.


Nánari upplýsingar veita:
Ingimundur Ingimundarson löggiltur fasteignasali í síma 867-4540 eða ingimundur@miklaborg.is

Óskar Sæmann Axelsson löggiltur fasteignasali í síma 691-2312 eða osa@miklaborg.is

 

Fasteignin Tjarnabraut 2 (208)

91.3 4 Herbergi 1 Stofur 3 Svefnherbergi 1 Baðherbergi

Upplýsingar

Byggingarár : 2025
Fermetraverð : 760.131 Kr/m²
Byggingargerð : Íbúðareign
Fasteignamat : 63.450.000
Þvottahús : Inni á baðherbergi

Nánari upplýsingar veitir:

diddi 2
Ingimundur Kristján Ingimundarson
Löggiltur fasteigna- og skipasali

-

69.400.000 Kr.
Hafðu samband