Úugata 38 270

Mosfellsbær

Lýsing

Miklaborg kynnir: Glæsilegt og vel skipulagt raðhús í nýlegu og fjölskylduvænu hverfi í Mosfellsbæ. Um er að ræða nýbyggt raðhús sem verður afhent tilbúið til tréverks. Fullkomið heimili fyrir fjölskylduna. Raðhúsið er samtals 239,2 m2 og þar af er bílskúr 27,9 m2. Fjögur svefnherbergi, sjónvarpshol, tvö baðherbergi, þvottahús, geymsla, eldhús, stofa og borðstofa, bílskúr. Örstutt í leik- og grunnskóla. Reykjalundaskógur, Helgafell og Reykjafell í næsta nágrenni. Nánari upplýsingar veita Friðjón Örn Magnússon, lögg. fasteignasali í síma 692-2704 eða fridjon@miklaborg.is og Ólafur Finnabogason, lögg. fasteignasali í síma 822-2307 eða olafur@miklaborg.is

Nánari lýsing

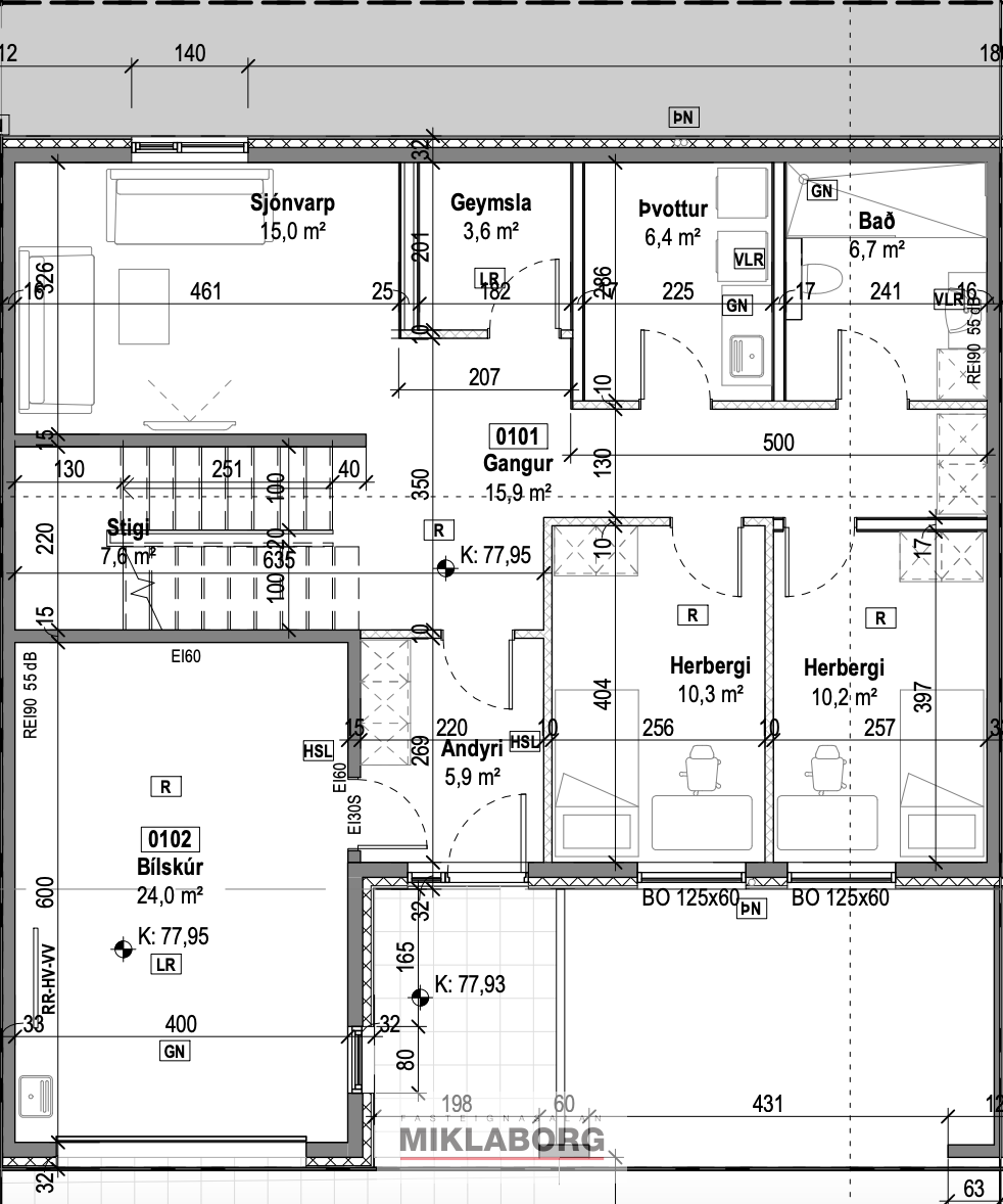
Um er að ræða nýbyggt tvílyft miðjuraðhús með innbyggðum bílskúr sem verður afhent tilbúið til tréverks, fullklárað að utan og frágengin lóð. Aðgengi að húsinu fyrir akandi og gangangi umferð frá Úugötu að suðvestan. Húsið er staðsteypt. Útveggir einangraðir að utanverðu með steinull, klætt með álkæðningu. Þakplatan er steypt. Gluggar eru verksmiðjuframleiddir ál / timbur gluggar. Gler er tvöfalt K-gler. Húsið er upphitað með gólfhitalögnum.

Fullkomið heimili fyrir fjölskylduna. Raðhúsið er samtals 239,2 m2 og þar af er bílskúr 27,9 m2. Fjögur svefnherbergi, sjónvarpshol, tvö baðherbergi, þvottahús, geymsla, eldhús, stofa og borðstofa, útengt á stórar svalir frá borðstofu sem snúa í suðvestur, bílskúr. ATH ! Myndir að innan eru tölvugerðar.

Örstutt í leik- og grunnskóla. Reykjalundaskógur, Helgafell og Reykjafell í næsta nágrenni. Nánari upplýsingar veita Friðjón Örn Magnússon, lögg. fasteignasali í síma 692-2704 eða fridjon@miklaborg.is og Ólafur Finnabogason, lögg. fasteignasali í síma 822-2307 eða olafur@miklaborg.is

Fasteignin Úugata 38

239.2 6 Herbergi 2 Stofur 4 Svefnherbergi 2 Baðherbergi

Upplýsingar

Byggingarár : 2025
Fermetraverð : 620.401 Kr/m²
Byggingargerð : Raðhús
Fasteignamat : 82.650.000
Þvottahús : Sér

Nánari upplýsingar veitir:

fr
Friðjón Örn Magnússon
Löggiltur fasteignasali, B.A í stjórnmálafræði frá Háskóla Íslands.

Friðjón er löggiltur fasteignasali og stjórnmálafræðingur. Friðjón rak áður tvö íbúðahótel ásamt eiginkonu sinni og býr nú með henni og börnum sínum þremur í Mosfellsbæ. Hann sér um sölu fasteigna.

148.400.000 Kr.
Hafðu samband