Opið hús: 26.02.2026, 16:00 - 26.02.2026, 16:30

Núpalind 8 201

Kópavogur

Lýsing

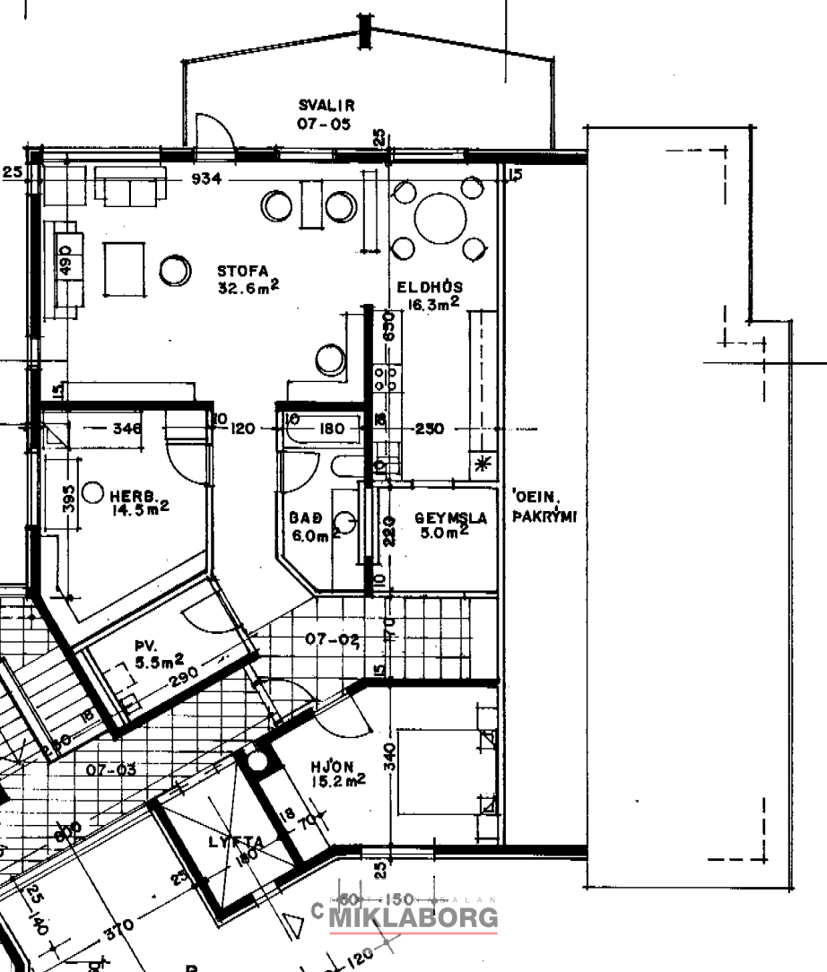
Miklaborg kynnir: Falleg og vel skipulögð þriggja herbergja 120 fm útsýnisíbúð á 7. hæð (efstu) í viðhaldslitlu fjölbýli í Núpalind í Kópavogi. Íbúðin er skráð 120 fm en auk þess fylgja íbúðinni tvö stæði í bílageymslu sem eru samtals 28 fm. Alls er eignin skráð 148,1 fm. Á hæðinni eru aðeins tvær íbúðir. Eignin skptist í forstofu, tvö svefnherbergi, eldhús, þvottahús, baðherbergi, stofu,borðstofu, yfirbyggðar svalir, búr og tvö stæði í bílastæðahúsi. Eignin getur verið laus fljótlega eftir kaupsamning.


Nánari upplýsingar veitir Óskar Sæmann í síma 6912312 eða osa@miklaborg.is

Núpalind 8 er staðsteypt steinhús byggt árið 1999 með einum stigagangi með lyftu, einangrað að utan og klætt með plötuklæðningu. Gluggar eru álklæddir timburgluggar með þreföldu einangrunargleri. Örstutt er í Lindaskóla, leikskóla, verslanir og göngu- og hjólaleiðir.

Íbúð 702 Nánari lýsing

Forstofa er rúmgóð með góðum skápum. Svefnherbergin eru tvö, bæði björt, með parketi á gólfum og góðum skápum. Stofa er björt og rúmgóð með stórum gluggum og miklu útsýni til suð-vesturs, útgengi út á stórar yfirbyggðar svalir sem snúa í suð-vestur. Borðstofa og stofa eru í opnu alrými. Eldhús er snyrtilegt og rúmgott með góðri innréttingu með ofni í vinnuhæð, helluborði, háf og plássi fyrir ísskáp og uppþvottavél. Búr er inn af eldhúsi. Sér þvottahús er innan íbúðar með skáp og skolvask og plássi fyrir þvottavél og þurrkara. Baðherbergi með flísum á gólfi og veggjum, sturtuklefa, salerni og innréttingu. Parket er á öllum gólfum nema á baðherbergi, þvottahúsi og forstofu, en þau rými eru öll flísalögð. Innréttingar og skápar eru upprunaleg en í góðu ástandi.  Íbúðinni fylgja tvö bílastæði í lokuðu bílastæðahúsi.

Stigagangur og önnur sameign er sérlega snyrtileg. Á jarðhæð er sameiginleg hjóla- og vagnageymsla.



Nánari upplýsingar veitir

Óskar Sæmann Axelsson Löggiltur fasteignasali í síma 691-2312 eða osa@miklaborg.is

Fasteignin Núpalind 8

148.1 3 Herbergi 1 Stofur 2 Svefnherbergi 1 Baðherbergi

Upplýsingar

Byggingarár : 1999
Fermetraverð : 674.544 Kr/m²
Byggingargerð : Íbúðareign
Fasteignamat : 95.650.000
Þvottahús : Sér innan íbúðar

Nánari upplýsingar veitir:

sss
Óskar Sæmann Axelsson
Löggiltur fasteignasali

Óskar er með sveins- og meistararéttindi í bílamálun og hefur unnið í kring um bílageirann frá árinu 2001. Árið 2020 skipti svo Óskar um ham og fór í nám til löggildingar fasteigna- og skipasala og réð sig í vinnu hjá Mikluborg. Óskar sleit barnaskónum í vesturbæ Reykjavíkur og er sjóðheitur KR-ingur og golfari. Óskar er giftur þriggja barna faðir og býr með fjölskyldu sinni í Mosfellsbæ.

691-2312
99.900.000 Kr.
Hafðu samband