Miðhraun (leiga) 13 210

Garðabær

Lýsing

Miklaborg kynnir: Til leigu 1538,1 fm atvinnuhúsnæði sem skiptist upp í lager, verslun og skrifstofur á efri hæð. Mjög góð bílastæði og lóðin er steypt með góðu burðarþoli.

Eignin er laus frá og með haustinu 2026

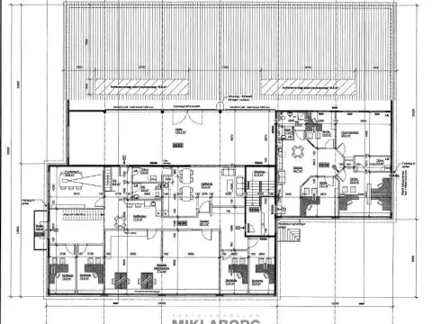
Nánari lýsing: Jarðhæð að framan skiptist í verslunarrými með góðum gluggum og skrifstofum innst í rýminu. Til hliðar er lager, iðnaðarbil eða verkstæði með tveimur innkeyrsluhurðum sem tengist stærri lager. Inn af verslunarrými er millilager en innangengt er í hann frá verslun. Inn af millilager er stór rými fyrir verkstæði, lager eða iðnað með mikill lofthæð, þar eru tvær góðar hurðir með minnst um 4 metra lofthæð. Á efri hæð eru skrifstofur, vinnuherbergi og starfsmannaðstaða en aðkoma er í gegnum stigahús sem er bæði innangengt frá verslun og með sérinngangi af lóð. Efri hæðin er tvískipt og væri möguleiki á að tvö fyrirtæki hefðu þar aðstöðu.


Bílaplan og aðkoma er steypt og því gott burðarþol fyrir þungaflutninga.


Nánari upplýsingar veitir Svan Gunnar Guðlaugsson löggiltur fasteignasali í síma 697 930 eða svan@miklaborg.is

Fasteignin Miðhraun (leiga) 13

1538.1 0 Herbergi - Stofur - Svefnherbergi - Baðherbergi

Upplýsingar

Byggingarár : 2005
Fermetraverð : 0 Kr/m²
Byggingargerð : Atvinnuhúsnæði
Fasteignamat : 439.250.000

Nánari upplýsingar veitir:

sv
Svan Gunnar Guðlaugsson
Löggiltur fasteignasali

Svan Gunnar Guðlaugsson hefur um 30 ára reynslu úr bankageiranum og starfaði þar frá 1981 bæði hjá Íslandsbanka og Byr síðast sem útibússtjóri. Svan hefur aflað sér mikillar þekkingar í gegnum starf sitt á fasteignamarkaðnum og þekkir vel til smærri sem stærri mála húsnæðismarkaðsins hvort heldur er í atvinnu- eða íbúðarhúsnæði. Svan er mikill golfari og áhugamaður um íþróttir enda mikill keppnismaður. Svan á 4 dætur.

0 Kr.
Hafðu samband