Garðsendi 3 108

Reykjavík

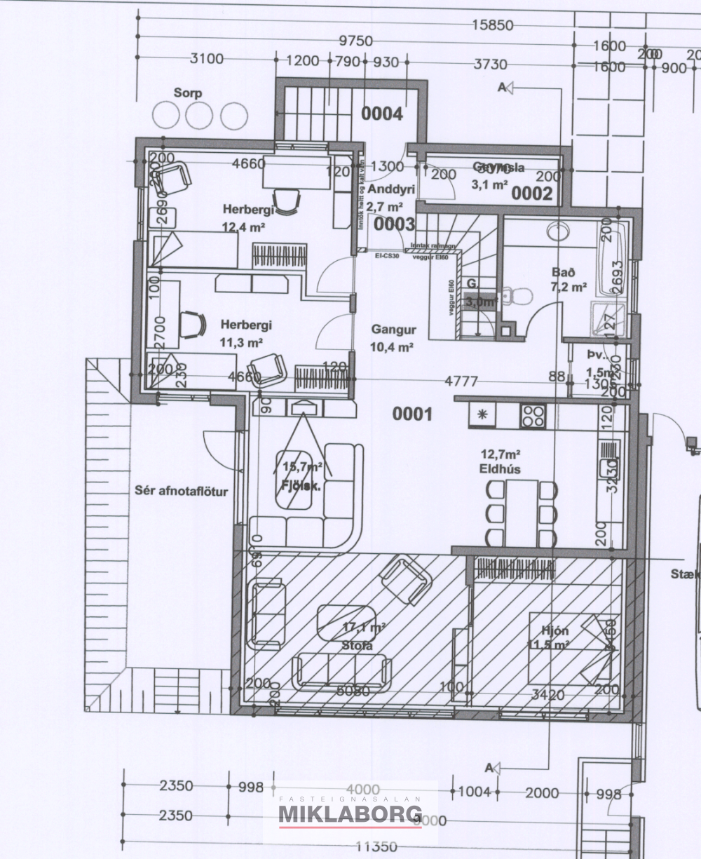
Lýsing

Móeiður og Miklaborg kynna í einkasölu:

Einstaklega fallega og mikið endurnýjaða 101,8 fm 3–4 herbergja jarðhæðaríbúð með stórum 20 fm sólpalli sem snýr í hásuður við Garðsenda 3, miðsvæðis í Reykjavík.

Um er að ræða vel skipulagða og bjarta eign í húsi sem hefur verið nánast endurnýjað frá grunni á síðustu árum.

Bókaðu skoðun! Móeiður Svala lögg. fasteignasali í síma 8998278 eða moa@miklaborg.is


Nánari lýsing:

Jarðhæð með stórum sólpalli í hásuður – mikið endurnýjuð íbúð í nánast endurnýjuðu húsi.

Rúmgott og bjart alrými þar sem stofa, borðstofa og eldhús tengjast með stórum gluggum til suðurs.

Úr stofu er gengið út á glæsilegan um 20 fm sólpall sem snýr í hásuður og nýtur sólar frá morgni og fram á kvöld. Einnig er 100 fm sameiginlegur sólpallur!

Íbúðin er með tvö góð svefnherbergi með stórum fataskápum og möguleika á að bæta við þriðja herberginu.

Fallegt eldhús með eyju og innbyggðum ísskáp og uppþvottavél.

Baðherbergið hefur verið mjög smekklega endurnýjað með flísum á gólfi og veggjum, walk-in sturtu með gleri, vegghengdu salerni og fallegri innréttingu.

Við hlið þess er þvottaherbergi með glugga og góðri aðstöðu.

Geymsla er innan íbúðar og gólfhiti er í allri íbúðinni.

Allt húsið er nýklætt að framan og aftan

Miklar endurbætur

Íbúðin hefur verið endurnýjuð frá grunni, m.a. með jarðvegsskiptum, nýjum gólfum með gólfhita, nýrri einangrun, nýjum milliveggjum og nýjum innréttingum, hurðum og gólfefnum.

Húsið hefur einnig verið umfangsmikið endurnýjað á síðustu árum, m.a.:

  • þak og burðarvirki endurgert
  • allir gluggar og gler endurnýjuð
  • rafmagns- og vatnslagnir endurnýjaðar
  • nýtt dren og skólp út í götu
  • húsið múrað og málað að utan
  • lóð endurgerð með bílaplani, stéttum og tröppum með snjóbræðslu

Eignin er á góðum og rólegum stað miðsvæðis í Reykjavík, stutt í skóla, þjónustu og helstu samgönguleiðir.

Upplýsingar frá seljanda:

Seljandi mun klára eftirfarandi atriði innan við 3. mánuði eftir sölu

1. Mála þar sem þarf í geymslu og þvottaherbergi

2. Skipta um útidyrahurð

3. Klára sólpall alveg, þeas loka fyrir opið á milli sérafnotaréttar og sameignar með tröppu.


Umfram það býður hann upp á:

1. Fataskápar í svefnherbergjum mega fylgja með.

2. Skera út og setja upp glugg, bæta við 3. svefnherberginu - Gegn einhverju samkomulagi

3. Er almennt opinn gagnvart flestu ef upp koma séróskir

Hér er á ferðinni einstaklega vel heppnuð eign á mjög eftirsóttum fjölskyldustað í Reykjavík– frábært tækifæri til að eignast vandað og fallegt heimili.


Bókaðu skoðun! Móeiður Svala lögg. fasteignasali í síma 8998278 eða moa@miklaborg.is


Fasteignin Garðsendi 3

101.8 3 Herbergi 1 Stofur 2 Svefnherbergi 1 Baðherbergi

Upplýsingar

Byggingarár : 1960
Fermetraverð : 853.635 Kr/m²
Byggingargerð : Fjölbýlishús
Fasteignamat : 72.900.000
Þvottahús : Sér innan íbúðar

Nánari upplýsingar veitir:

m2
Móeiður Svala Magnúsdóttir
Löggiltur fasteigna- og skipasali

Móeiður útskrifast sem löggiltur fasteigna- og skipasali vorið 2024. Fyrir utan gríðarlegan áhuga hennar á arkítektúr og innanhúshönnun þá hefur hún verið í hestamennsku frá ungum aldri og elskar alla útivist. Hún er alin upp í hlíðunum Reykjavík en býr nú í Garðabænum.

899-8278
86.900.000 Kr.
Hafðu samband