Frakkastígur 8C 101

Reykjavík

Lýsing

Miklaborg kynnir:

***Virkilega björt og glæsileg 4ra herbergja íbúð á 4 hæð í nýlegu fjölbýli í miðbæ Reykjavíkur - hönnuð af Berglindi Berndsen innanhúsarkítekt.
Lýsing er frá LUMEX
Gólfsíðir gluggar með frábæru útsýni á miðborgina, hafið og Esjuna.
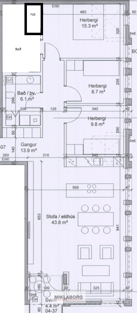
Eignin er samtals 130fm, 3 svefnherbergi, 2 baðherbergi, geymsla (8,4fm) og stæði í bílakjallara.
Eignin getur verið laus við kaupsamning.


***Allar nánari upplýsingar veita

Sæþór Ólafsson löggiltur fasteignasali í síma 855-5550 eða saethor@miklaborg.is

NÁNARI LÝSING: Komið inn í anddyri með skápum. Eldhús er með fallegri innréttingu (voke 3), eldunareyju og innbyggðum ísskáp og uppþvottavél. Eldhús er opið inn í bjarta stofu sem skiptist í stofu og borðstofu. Fallegt útsýni er út á flóann og gólfsíðir gluggar. Svalir út frá stofu. Úr stofu er gengið inn á svefnherbergisgang. Tvö góð barnaherbergi með skápum ásamt baðherbergi með sturtu og tengi fyrir þvottavél og þurrkara. Hjónaherbergið er sérlega rúmgott með góðum skápum. Sér baðherbergi er inn af hjónaherbergi og er það með fallegri innréttingu, sturtu og baðkari. Í kjallara er góð geymsla og stæði í lokaðri bílgeymslu. Snyrtilegur inngarður er í suðurvestur.

GÓLFEFNI: Vandað viðarparket er á öllum gólfum nema baðherbergjum en þar eru flísar.


FALLEG, NÝLEG ÍBÚÐ Á FRÁBÆRUM STAÐ Í MIÐBÆ REYKJAVÍKUR


Allar nánari upplýsingar veita

Sæþór Ólafsson löggiltur fasteignasali í síma 855-5550 eða saethor@miklaborg.is

Ólafur Finnbogason löggiltur fasteignasali í síma 822 2307 eða olafur@miklaborg.is

Fasteignin Frakkastígur 8C

130.0 4 Herbergi 1 Stofur 3 Svefnherbergi 2 Baðherbergi

Upplýsingar

Byggingarár : 2019
Fermetraverð : 1.150.000 Kr/m²
Byggingargerð : Íbúðareign
Fasteignamat : 115.300.000
Þvottahús : Inni á baðherbergi

Nánari upplýsingar veitir:

sss
Sæþór ÓIafsson
Löggiltur fasteigna- og skipasali

-

149.500.000 Kr.
Hafðu samband