Opið hús: 13.12.2025, 16:00 - 13.12.2025, 16:30

Áshamar 56 (301) 221

Hafnarfjörður

Lýsing

Aðeins 8% útborgun í boði fyrir fyrstu kaupendur


Miklaborg kynnir: Vel skipulagðar og bjartar 3ja til fimm herbergja íbúðir í þremur húsum á fallegum stað í Hamraneshverfinu í Hafnarfirði. Ný Ásvallabraut veitir greiða samgönguleið til og frá svæðinu. Hamraneshverfi er vel staðsett hverfi í mikilli uppbyggingu með skóla, leikskóla og falleg útivistarsvæði í í næsta nágrenni. 

- Flestar íbúðir falla undir hlutdeildarlán HMS

- Fullbúnar íbúðir án megingólfefna

- Gólfhiti er í öllum íbúðum

- Tilbúnar til afhendingar við kaupsamning


Nánari upplýsingar veitir:

Ingimundur Ingimundarson löggiltur fasteignasali í síma 867-4540 eða ingimundur@miklaborg.is

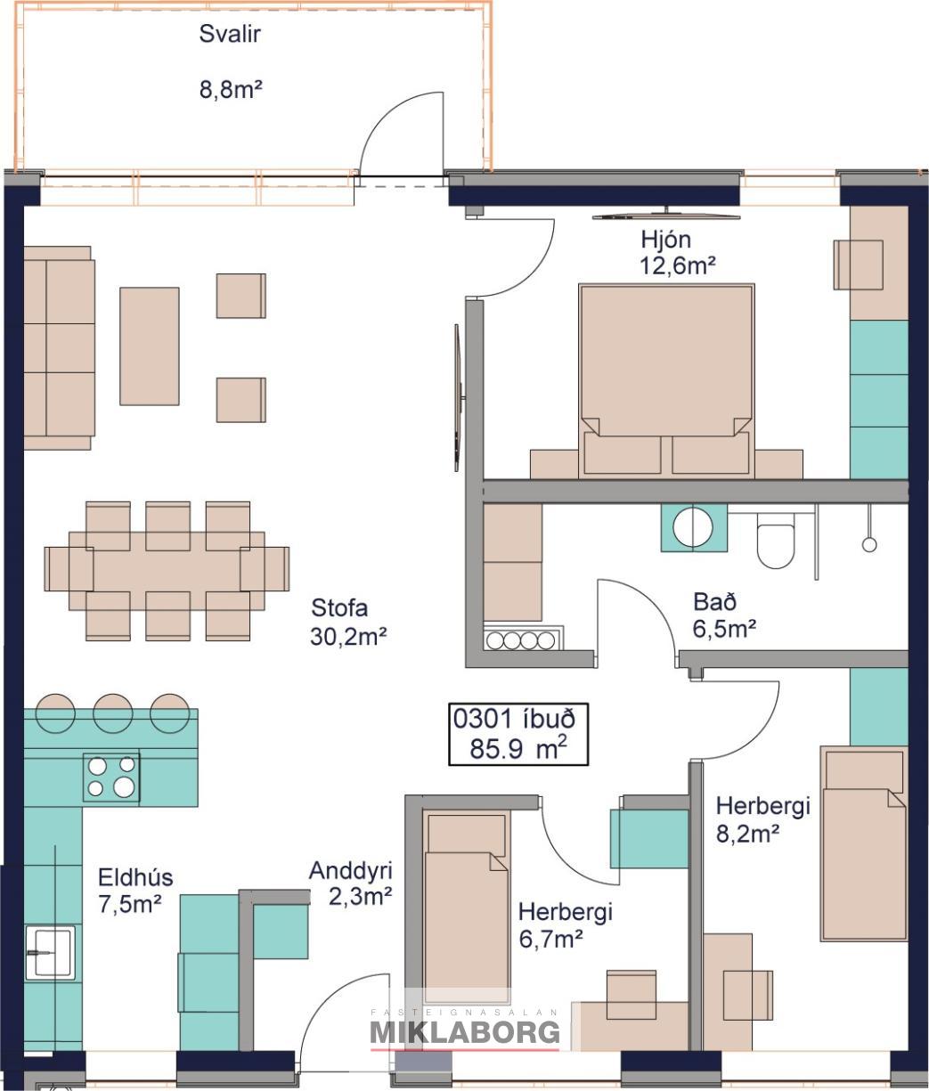
Íbúð 301 björt og vel skipulögð 91,5 fm, fjögurra herbergja íbúð á 3. hæð.

 

Nánari lýsing.

Eignin skiptist skiptist í anddyri með fataskáp. Þaðan er gengið inn í alrými. Eldhús með fallegri innréttingu frá AXIS og vönduðum tækjum frá AEG. Eldhús er opið inn í bjarta stofu með útgengi á svalir.

Hjónaherbergi með góðum fataskáp. Tvö góð barnaherbergi með skápum. Baðherbergi með flísum á gólfi veggjum að hluta, sturtu, fallegri innréttingu og góðri þvottaaðstöðu.

Gólfhiti er í öllum íbúðum.

 

Nánari upplýsingar má finna á heimasíðunni

 

GG verk var stofnað árið 2006 og er í dag eitt af stærstu byggingafyrirtækjum á íslandi og hafa byggt yfir 1500 íbúðir og atvinnurými. GG verk hefur það að markmiði að byggja vandað íbúðarhúsnæði af framúrskarandi fagmennsku.

 

Nánari upplýsingar veita:

Ingimundur Ingimundarson löggiltur fasteignasali í síma 867-4540 eða ingimundur@miklaborg.is

Steinn Andri Viðarsson löggiltur fasteignasli í síma 775-1477 eða steinn@miklaborg.is

Stefán Jóhann Stefánsson löggiltur fasteignasali í síma 659-2634 eða stefan@miklaborg.is

Jón Rafn Valdimarsson löggiltur fasteignasali í síma 695-5520 eða jon@miklaborg.is

Óskar Sæmann Axelsson löggiltur fasteignasali í síma 691-2312 eða osa@miklaborg.is

Ólafur Finnbogason löggiltur fasteignasali í síma 823-2307 eða olafur@miklaborg.is

Fasteignin Áshamar 56 (301)

91.5 4 Herbergi 1 Stofur 3 Svefnherbergi 1 Baðherbergi

Upplýsingar

Byggingarár : 2024
Fermetraverð : 792.350 Kr/m²
Byggingargerð : Fjölbýlishús
Fasteignamat : 70.550.000
Þvottahús : Inni á baðherbergi

Nánari upplýsingar veitir:

diddi 2
Ingimundur Kristján Ingimundarson
Löggiltur fasteigna- og skipasali

-

72.500.000 Kr.
Hafðu samband