Álftamýri 6 108

Reykjavík

Lýsing

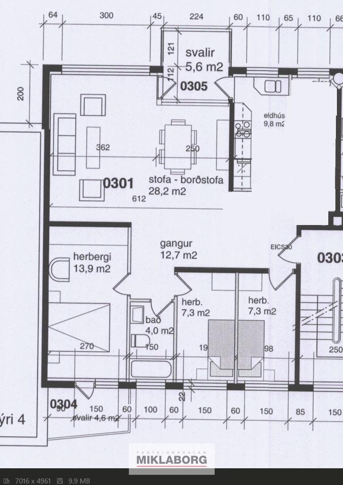
Miklaborg kynnir: Virkilega falleg og björt fjögurra herbergja íbúð á þriðju hæð við Álftamýri 6, Reykjavík. Skv. skráningu HMS er eignin samtals 139,9 fm að stærð og skiptist í íbúðarými 100,5 fm, tvennar geymslur 11,3 fm og 5,6 fm og bílskúr 22,5 fm. Íbúðin skiptist í forstofu, eldhús, stofu/borðstofu, baðherbergi og þrjú svefnherbergi.

Búið er að breyta eldhúsi frá upprunalegum teikningum. Ný glæsileg innrétting frá HTH.

Um er að ræða virkilega bjarta og rúmgóða eign á vinsælum stað, miðsvæðis í Reykjavík í húsi sem hefur fengið gott viðhald undanfarin ár. Möguleiki er að bæta við fjórða svefnherberginu þar sem borðstofan er.

Örstutt frá leik- og grunnskóla og íþróttasvæði Víkings í Safamýri.

Allar nánari upplýsingar veitir Ingimundur Ingimundarson löggiltur fasteignasali, í síma 867-4540 eða ingimundur@miklaborg.is

Forstofa með flísum á gólfi. Stór fataskápur.
Eldhús mjög rúmgott með glæsilegri innréttingu frá HTH. Gott skápapláss. Flísar á gólfi. Frá eldhúsi er útgengt út á svalir sem snúa í suður.
Stofa/borðstofa saman í opnu og rumgóðu rými. Bjart rými og stórir gluggar í suður. Frá stofu gengið út á svalir sem snúa í suður. Parket á gólfi.
Baðherbergi flísalagt með baðkari og sturtu.
Hjónaherbergi með parket á gólfi. Nýlegur sérsmiðaður fataskápur frá AXIS. Útgengt út á svalir með glæsilegu útsýni í átt að Esjunni.
Barnaherbergi með fataskáp. Parket á gólfi.

Barnaherbergi/forstofuherbergi með fataskáp.

Tvær geymslur fylgja eigninni niðri á geymslugangi og eru þær 11,3 fm og 5,6 fm að stærð. Báðar með glugga.

Bílskúr er með heitu og köldu vatni og búið er að leggja fyrir hleðslustöð framan á bílskúrnum. Sér og öflugt húsfélg er um bílskúrana.

Viðhald undanfarin ár :
Álftamýri 2, 4 og 6
2024. Skipt um alla glugga og svalahurðir. Múrviðgerðir og málað.
2018 Skipt um járn á þaki.
2015 Skólp endurnýjað og fært út fyrir grunn. Lagt dren og gagnstétt endurnýjuð með snjóbræðslu.

Álftamýri 6

2019. Stigagangur málaður og skipt um teppi.
2025. Hitaveitugrind endurnýjuð.


Bílskúrar
2026. Tengt fyrir rafhleðslustöðvar.
2023. Dúkur lagður á þak.
2022. Múrviðgerðir og málað.
2014. Múrviðgerðir og málað. Skipt um glugga.

Íbúð 301
2025 Flotað eldhús, forstofa og eitt herbergi. Flísar lagðar í forstofu og eldhúsi. Ný eldhúsinnrétting frá HTH og ný tæki frá Ormsson.


Allar nánari upplýsingar veitir Ingimundur Ingimundarson löggiltur fasteignasali, í síma 867-4540 eða ingimundur@miklaborg.is

Fasteignin Álftamýri 6

139.9 4 Herbergi 1 Stofur 3 Svefnherbergi 1 Baðherbergi

Upplýsingar

Byggingarár : 1966
Fermetraverð : 599.714 Kr/m²
Byggingargerð : Íbúðareign
Fasteignamat : 88.650.000
Þvottahús : Sameiginlegt í kjallara

Nánari upplýsingar veitir:

diddi 2
Ingimundur Kristján Ingimundarson
Löggiltur fasteigna- og skipasali

-

83.900.000 Kr.
Hafðu samband